Bürgerhaus Uchtdorf
Unser Bürgerhaus Uchtdorf steht nicht nur den Uchtdorfer Vereinen sondern auch allen interessierten Bürgerinnen und Bürgern für ihre Privatveranstaltung zur Verfügung.
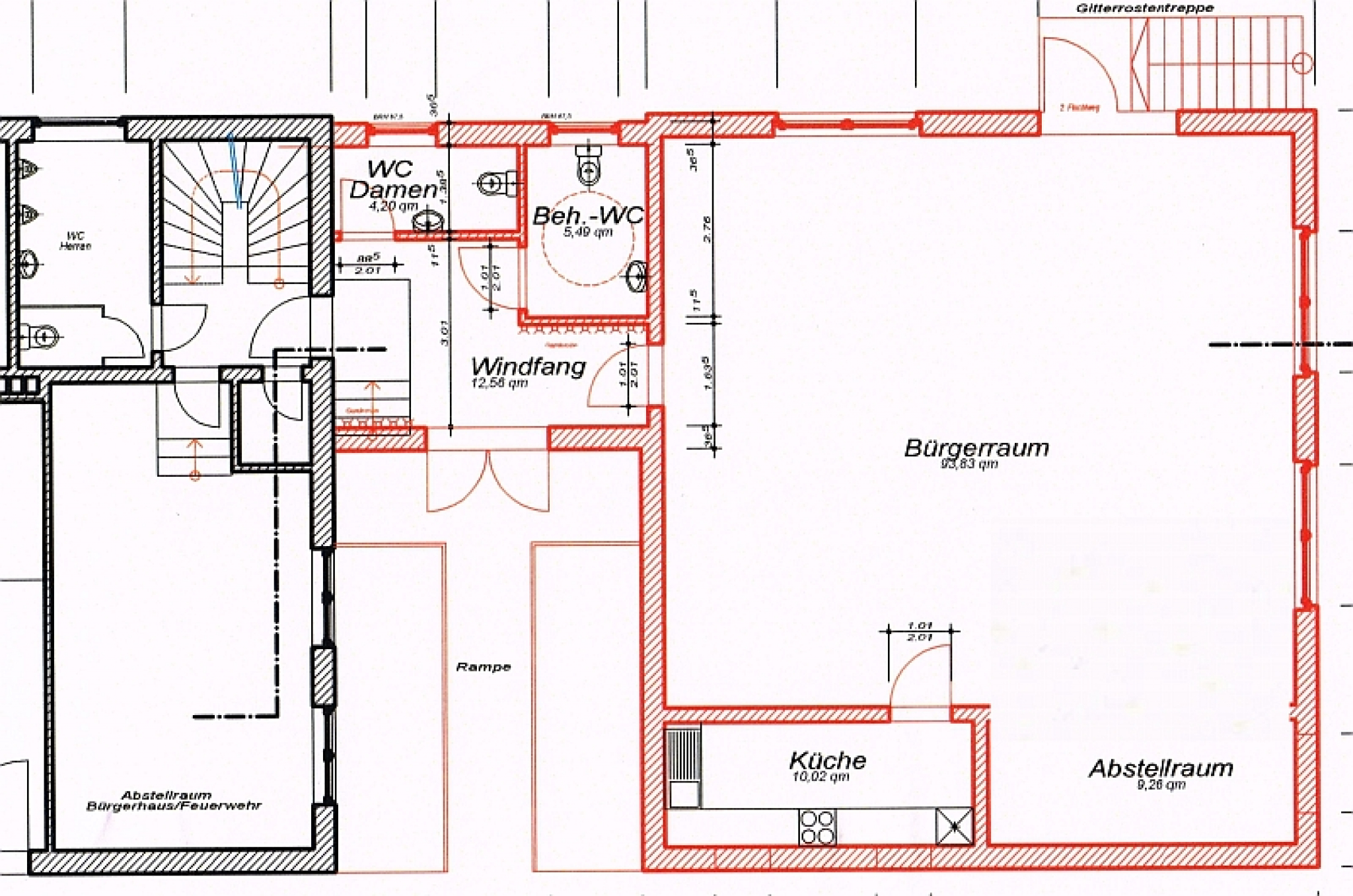
Der Hauptraum hat eine eine Länge von 10,20 x 9,10 Meter und eignet sich für Feierlichkeiten bis zu 80 Personen.
Die Küche mit einer Größe 4,80 x 1,95 Meter ist mit Kühlschrank, Spülmaschine, Spüle und E-Herd ausgestattet und hat eine verschließbare Durchreiche in den Hauptraum.
Kaffee- und Essgeschirr ist für jeweils 90 Personen vorhanden.
Eine Nische im Hauptraum von 5,00 x 2,25 Meter eignet sich zum Abstellen der Tische und Stühle, für die Musik (DJ) oder ein Buffet.
Im Eingangsbereich befinden sich die Garderobe und die sanitären Anlagen.
Parkplätze sind auf dem Gelände vorhanden.
Ansprechpartner für alle Fragen zur Anmietung:
Dieter von der Heyde
Tel.: 05751 / 958450
Oder Handy: 0176 531 350 64
Mail: hdvdheyde@t-online.de
Trägerverein Bürgerhaus Uchtdorf e. V.
1. Vorsitzender
Georg Höfig
Wennenkämper Str. 17
31737 Rinteln
- Nutzungsbedingungen (878 KB | pdf)



